Looks right. Feels right. Built for Flood-prone living.
The Modern Coastal façade is purpose-designed for flood-affected areas.
It meets elevation requirements, avoids the flimsy or top-heavy look many people worry about, and gives you a
home that feels balanced, confident, and coastal — without compromise.
Why this Design works
A grounded street presence
Natural airflow, light, and views
Designed for flood levels and council requirements
Made for modular
Quicker build with less disruption

Why Modular + Flood Zones just make sense
- Elevation is part of the method, not a complication
- Minimal on-site works = fewer delays and less chaos
- Easier to access services under the home for future maintenance
- A better way to approach knockdown rebuild on challenging blocks
- Designed for flood flow and resilience from the ground up
Find your dream Floorplan
At Manor, we offer several floorplan series to suit different styles, block sizes, and orientations.
Our Rivers Series can be adapted into the elevated, modern, flood-resistant Coastal façade.
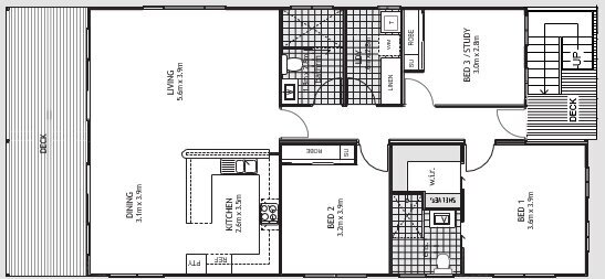
Below is one of the River Series floorplans – The Bega.
The Bega
2 Bedroom
14.8M x 8M
Example Only
The Bega is just one example of how our new Modern Coastal façade can bring a fresh, elevated feel to your home. The look can be applied to every design in our Rivers Series, as well as several others across the Manor range. When you meet with a Design Consultant during your Discovery Session, we’ll help you explore which layout and style best fit your land, lifestyle, and site conditions — and whether the Modern Coastal façade is the perfect match for your project.
Manor has decades of experience delivering homes on challenging and coastal sites.
Our process makes life easier – whether you’re doing a knockdown rebuild or building on a fresh block.
Start with a Display Inspection or Discovery Session. See the quality, ask questions, and chat through your block and ideas.
If you’re inspired and ready to take the next step, we’ll guide you through the process – and you could be living in your new dream home in as little as 16 weeks.
For knockdown rebuilds, modular construction lets you stay in your current home longer and often avoid renting or moving twice — saving both cost and stress along the way.
Book in for your Display & Discovery Session to register for the Modern Coastal Summer Promotion
From there, you can invest $2,300 in a Design Pack (by 28 Feb) to unlock your tailored design meeting, site visit, and Blueprint Package — plus receive a...
Plus — get a free Weber Baby Q BBQ!
Pay your Design Pack before 19 Dec 2025 and take home a brand-new Weber Baby Q, valued at $399, after the Site Inspection and/or Blueprint Presentation.
Perfect for summer, camping, beach days, or cooking up your first meal as your Manor journey begins.
Modern Coastal Summer Promotion — Terms & Conditions. Offer applies only to customers who register for the Modern Coastal Summer Promotion before or at their Discovery Session. Registrations made after the Discovery Session are not eligible. To qualify for the $5,000 Colour Selection Voucher, you must first purchase a Tailored Design Pack for a Modern Coastal façade by 28 February 2026, and the promotion must be recorded on the quote / Blueprint Package. The Voucher is applied at the colour selection stage, must be used within 12 months of contract signing, and is not transferable, refundable, or redeemable for cash. Not available with any other offer, promotion or discount. To qualify for the free Weber Baby Q, the Design Pack must be paid in full by 19 December 2025. The Weber Baby Q is provided on successful completion of the Site Visit and / or Blueprint Presentation. Manor may substitute items of equal or greater value if required, subject to supplier availability. One promotion applies per home. Back-claims will not be accepted. All / any pricing includes GST.